Our Home Plans and Materials List Packages

Super strong energy efficient homes built by you! 

2x6 Exterior Walls.

On Demand Water Heater.

Spray Foam Insulation.

The entire home can be purchased at Lowe's if you build the wood floor foundation.

Order your materials online and never have to go to the store. Saves you hours and hours.

Materials list includes the tools required for the build.

These Buildings Can Be Built With Just Two People!

DIY Checklist and Guide

1) Building Permit, you will need to find out if your city or county has a building department, if so, you will need a permit. 

2) Water Connection, water line is 3/4 Pex

3) Sewer Connection, sewer line is 4 "

4) Electrical Connection, all buildings require a 200 AMP Service

5) Grab your plan package, get your permit if required, order delivery one on your spreadsheet and start building!

 

 

The 16x16 Studio or Office

 A great space for you to release your creativity.

 Or Your private office.

 251 Square Feet.

 

Learn More

The 16x24 Cabin

 The perfect space for that single person.

 Build for mom or dad to keep them close!

 379 Square Feet.

 

 

Learn More

The 16x32 Cabin

This is the perfect starter home for people on a tight budget.

512 Square Feet.

 

Learn More

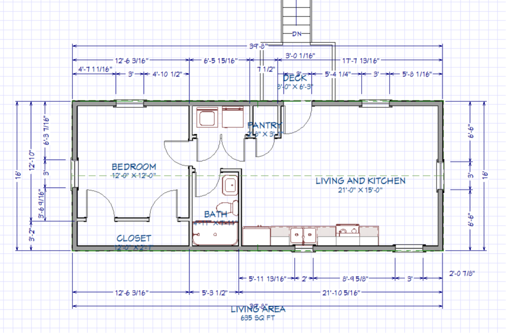
The 16x40 Ranch

This cozy home checks all of the boxes to meet your needs.

635 Square Feet.

 

Learn More

The 16x48 Home

 Plenty of room for any couple with a little more room   for living & entertaining.

 763 Square Feet.

 

Learn More

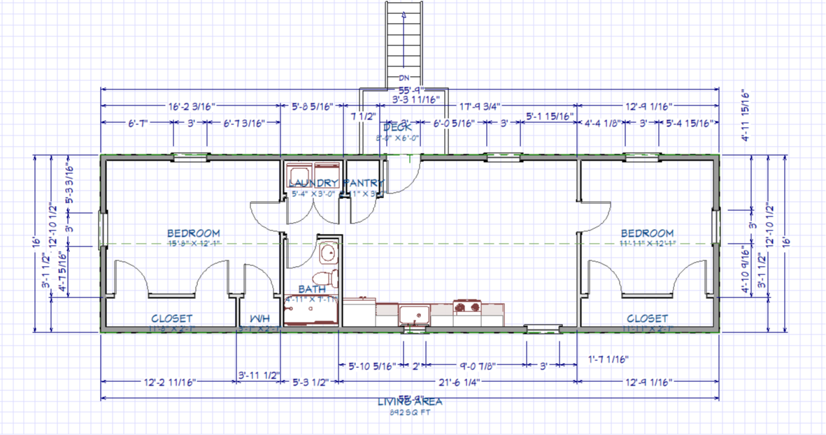
The 16x56 Two Bedroom

 Plenty of room for a small family or people that want to   have a guest room.

 891 Square Feet.

 

 

Learn More