The 16x48 Home

Ā 

Plans and Materials Content by Page #

Note: All spreadsheets are based on Lowe's website using their item numbers and prices. Prices were obtained on 8/04/2025 and could be different at the time you're viewing this.

The plan packages are laid out as follows

Spreadsheet layout, Quantity, Item Description, Item number, Price Each and Total

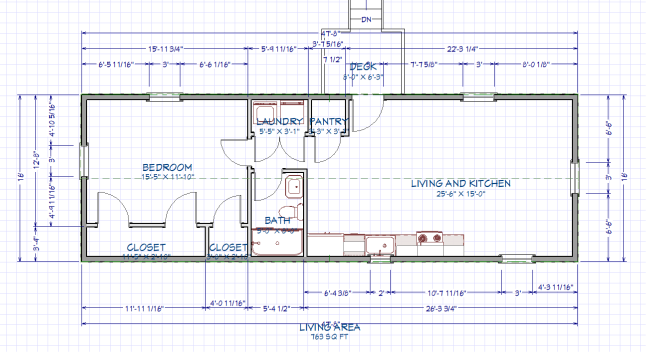
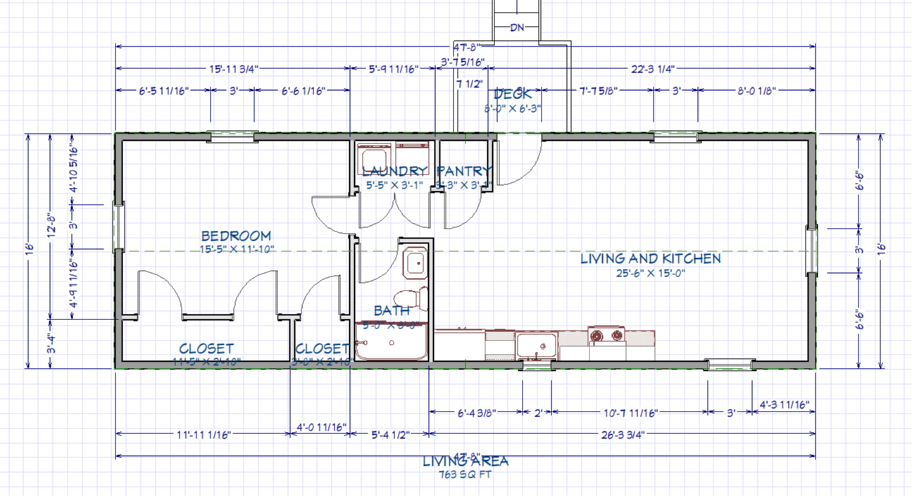
P-1, Floor Plan

P-2, Wood Post Footing Detail

P-3, Wall Section

P-4, Wood Floor Framing Plan

P-5, Roof Framing Plan

P-6, Electrical Plan

P-7, Summary of Costs of the 5 Deliveries, Tool List, Spray Foam Insulation by Contractor, Plus a 750.00 Miscellaneous Buffer.

P-8, Delivery 1 Spreadsheet, Floor framing materials

P-9, Delivery 2 Spreadsheet, wall and roof framing materials, roof underlayment and roofing shingles, House wrap, window, front door, Exterior trim, paint and caulking, hurricane hold downs.

P-10&11, Delivery 3 Spreadsheet, Electrical rough in materials, 200 AMP breaker panel, wire, outlet boxes, electrical tools, Plumbing rough in materials and tools.

P-12, Delivery 4 Spreadsheet, Drywall, mud and tape, drywall tools, Interior paint and supplies, Hardie siding for exterior.

P-13&14, Delivery 5 Spreadsheet, Vinyl plank flooring, interior trim, interior doors, cabinets, light fixtures, Plumbing Fixtures, 2 Mini Split A/C Units and needed supplies, Range, Refrigerator, Dishwasher, Washer and Dryer, Lockset for front door.

P-15, Tool List

P-16, Monolithic Slab Materials Option.

P-17, Monolithic Slab Plan Detail.

P-18, Exterior Elevation, Like a picture of the front of the cabin.

P-19, Interior Kitchen, Like a picture of the kitchen.

Total Estimated Build Cost = $ 51,759.39

Plan package investmentĀ  $ 299.00

Purchase Plan Package $ 299.00

Instant Download

Buy Now