LOG IN
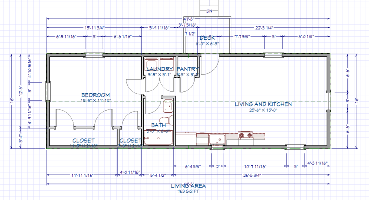
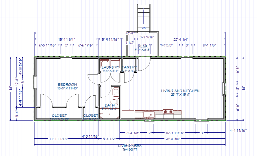
The 16 x 48 Home
Join The FREE Challenge
Enter your details below to join the challenge.