LOG IN
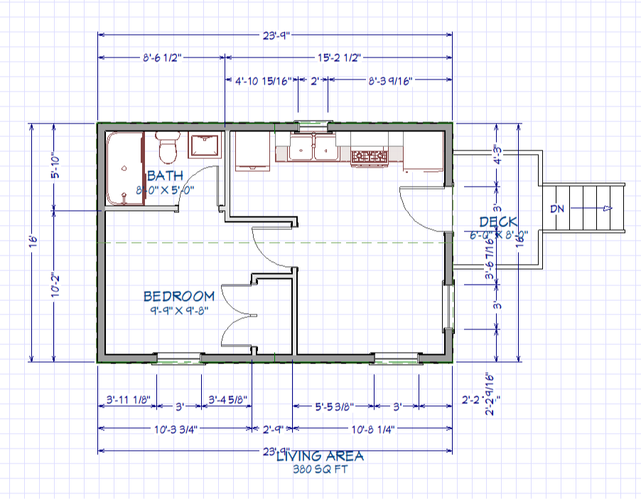
The 16 x 24
Join The FREE Challenge
Enter your details below to join the challenge.